


| Ort | Sonthofen |
|---|---|
| Fläche | BGF 22.000 m2 |
| Nutzung | Wohnen |
| Wohneinheiten | 103 WE (Realisierungsteil) |
| Auslober | SWW Oberallgäu |
| Landschaft | grabner huber lipp landschaftsarchitekten und stadtplaner, Freising |
| Status | Nichtoffener Realisierungswettbewerb mit städtebaulichem und freiraumplanerischem Ideenteil, 04/ 2019 |
| Datum | 2019 |
| Mitarbeit | Ina-Maria Schmidbauer, Patrick von Ridder, Peter Scheller, Dorian Cani, Daniel Klinger |
SITUATION UND KONZEPT
Das Wettbewerbsgebiet wird im Norden durch die B308, im Westen durch ein Gewerbegebiet und im Süden und Osten durch eine Wohnbebauung begrenzt. Das Projekt beschäftigt sich mit der Frage, wie eine qualitätsvolle Nachverdichtung mit der bestmöglichen Dichte aussehen und funktionieren kann.
Durch die Stellung der teils polygonalen Körper und durch präzise gesetzte Öffnungen werden weite attraktive Blicke aus der Tiefe in die Landschaft und in die Allgäuer Alpen freigegeben. Klare gemeinschaftliche Außenräume, reichhaltige Perspektiven, überraschende räumliche Beziehungen, feinmaschig verteilte Eingänge und ein vielfältiges Angebot an Wohnungstypen bilden die Grundlage für ein lebenswertes Gartenquartier.
Neben der Ergänzungsbebauung des Quartiers, die sich trotz der höheren Dichte gut einfügt und hohe Wohnqualitäten bietet, ist die Aufwertung des Quartiers durch den neuen Quartiersplatz mit zusätzlichen verschiedenen Angeboten für die Nachbarschaft ein wichtiges Ziel. Die neuen Baukörper vervollständigen das Quartier zu einem losen Gefüge aus verschieden Höfen bzw. offenen Hofsequenzen. An der Bundesstraße B308 wird der Anschluss über eine dichtere Bebauung aus höheren, punktartigen Baukörpern markiert. Diese Typologien unterscheiden sich stark von der sonst vorherrschenden Zeilenbebauung; sie erinnern an den Verlust der markanten Hochhausscheibe und schaffen ein neues starkes Entree für das Goethequartier.
QUARTIER, ORTE UND RÄUME
Das neue Gesicht zur Stadt entwickelt sich über Raumfolgen mit unterschiedlichem Charakter und unterschiedlichen Nutzungen ins Goethequartier hinein. Der Anschluss an die B308 mit der Parkierungsanlage und TG Zufahrt wird über Raumsequenzen ins Quartier vernetzt und findet seinen Abschluss in dem kleinmaßstäblichen Platz mit Quartiershaus und Spielplatz im Süden. Die Erschließung erfolgt über Abstufungen: die Räume werden zusehends weniger öffentlich und grüner. Der große baumbestandene Raum in der Mitte kann für Wochenmärkte oder größere Veranstaltungen genutzt werden.
Der Nördliche Baukörper dient als TG Einfahrt für die Parkierungsanlage und kann in den zwei Obergeschossen noch zum Parken genutzt werden. In den darüber liegenden Geschossen sind Ateliers bzw. Wohnen vorstellbar oder eine Kombination aus beidem. Wir stellen uns hier Wohnformen vor, die mit mehr Öffentlichkeit auskommen. Auch ein Boardinghaus ist eine mögliche Nutzung. Der 7-geschoßige Hochpunkt im Süden des Platzes wirkt mehr ins Goethequartier hinein und beherbergt deswegen das Quartiershaus. In den oberen Geschossen können verschiedene Konzepte des Wohnens in allen Lebensphasen oder andere experimentelle Wohnformen wie z.B. Cluster Wohnen realisiert werden.
Die Goethestraße wird im Querschnitt deutlich reduziert und nach Norden verschoben um im Süden mehr Platz für die Nachverdichtung zu lassen. Über den Quartiersplatz verlangsamt sich der Verkehr in einen verkehrsberuhigten Bereich. Die neue Bebauung entlang der Goethestraße schafft über Knicke und Durchblicke nach Süden zu den Alpen hin eine spannende räumliche Abfolge.
Der Süd Typ gleicht der Schallschutzbebauung Typen im Norden wie eine große Schwester. Gleichzeitig ist er aber durch einen 5geschoßigen Teil markanter; eine Figur die sowohl Zeile als auch Punkt ist. Die Gebäude schließen den südlichen Hof zur Goethestraße ab und wirken über die Straße hinweg räumlich als Gegenüber für den nördlichen Hof. Die Goethestraße wird zum Teil des so entstandenen neuen Hofgefüges. Es entsteht ein ruhiges grünes aber lebendiges Quartier - die Gegensätze von rein funktionalem Verkehrsraum und attraktivem Freiraum werden aufgelöst. Die Straße wird zu einem Teil des neuen Freiraumsystems mit hoher Aufenthaltsqualität.
TYPEN UND WOHNEN
Wir haben zwei Typen entwickelt, eine Schallschutzbebauung im Norden und eine große Schwester im Süden. Beide Typen sind zwar verwandt aber nicht identisch. Die Module passen sich über ein gelenkartiges Element und damit über unterschiedliche Situierungen an den Kontext an. Über ihre leichte Polygonalität nehmen die Neubauten die verschiedenen Richtungen des Kontextes auf. Diese Gelenke sind in den meisten Fällen Balkonelemente, die an den Bestand anbauen: mal als Balkon für den Bestand, mal für den Neubau. Die neuen Typen werden auf diese Weise zu einem Teil der Bestandsbauten ohne in die Bausubstanz einzugreifen. Unterschiedliche Ausrichtungen des Bestandes fängt das Gelenk auf und der Typ kann dann immer als baugleiches Modul addiert werden. Das Goethequartier wird über diesen einfachen Kniff zu einem entworfenen Raumgefüge und nicht lediglich zu einer Bauausstellung aus optimierten Modulen.
Beide Typen orientieren sich über leichte Knicke oder Versätze jeweils nach mehreren Seiten hin und bieten damit gute Belichtungen und eine sehr hohe Wohnqualität. Die privaten Freiräume sind - auch um den Charakter des Quartiers zu prägen – von besonderer Bedeutung. Große vorgestellte Lauben und Balkonanlagen definieren die privaten Freiräume, die aus der Architektur entwickelt wurden und Teil der Häuser sind. Das Leben auf der Laube in einem gemeinschaftlichen Hof prägt das Quartier.
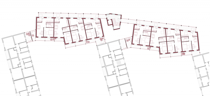
Der Nördliche Typ A wird über einen Laubengang erschlossen, der gleichermaßen dem Schallschutz dient. Zwei Treppenhäuser mit Lift erschließen sehr effizient die vier Häuser. Jeweils mittig ist ein Treppenhaus angeordnet, das als geschlossenes Element zusätzlich der Rhythmisierung der Nordansicht dient. Die lange Ansicht erfährt so unterschiedliche Abschnitte und Brüche. Hier finden sich hauptsächlich 2-Zimmerwohnungen. Zum Laubengang ist die Küche und der Zugang orientiert, im Süden ist ein Wohnzimmer und ein Individualraum. Der Bestand erhält als Aufwertung einen neuen Balkon, der zudem die Schallschutzbebauung abschließt. Die Bebauung ist 3geschoßig und fügt sich angenehm ein. Die Häuser sind somit unkompliziert zu retten und können ebenso unkompliziert als Holzhybridbau errichtet werden.
Der Südliche Typ B ist ebenfalls über ein gelenkiges Balkonelement an den Bestand angebaut. Der 3geschoßige Teil baut an, während der 5geschoßiger Baukörper den Raum besetzt und die neue Goethestraße und den fließenden Raum markiert. Ein Treppenhaus erschließt im Norden drei große Wohnungen die sich nach Süden orientieren. Es sind großzügige Dielentypen die verschränkte Wohn-Essräume anbieten. Die großen Wohnungen haben vielseitige Orientierungen und eine hohe Wohnqualität mit Blick in die Berge.
MATERIALITÄT UND BAUWEISE
Die Gebäude sind in Holzhybridbauweise geplant, mit Decken aus Brettsperrholz mit oberseitiger gebundener Splitschüttung, massiven Treppenhauskernen und vorgestellten Balkonregalen aus Stahlbetonfertigteilen. Die Außenwände in Holzständerbauweise sind einschließlich der Fenster und Fassadenbekleidung vorgefertigt. Die hinterlüftete Fassade besteht aus einer farbig lasierten Lärchenschalung auf einer Unterkonstruktion. Dank des hohen Vorfertigungsgrades können die Bauten in sehr kurzer Zeit errichtet werden.
Die Stützen der Balkonregale werden farbig lasiert, ihre leichten Brüstungen aus Gitterdraht und farbige Fensterläden geben dem Projekt eine sehr einfache aber schmückende Fassade. Dieselben Elemente finden sich am Laubengangtypus wieder. Jedes Haus erhält einen eigenen Farbton im Hintergrund der sich am Bestand orientiert. Besondere Akzente setzen farbig abgesetzte Flächen und der farbige Sonnenschutz. Leistbarer Schmuck.













