


| Ort | Aschau im Chiemgau, Pölching |
|---|---|
| Fläche | 210 m2 BGF |
| Wohneinheiten | 1 |
| Bauherr | privat |
| Tragwerk | a.k.a. Ingenieure |
| Gebäudetechnik | Team für Technik |
| Leistungsphasen | 1-8 |
| Status | Fertigstellung 08/ 2007 |
| Datum | 2007 |
| Auszeichnung | Architekturpreis Zukunft Wohnen 2009, engere Wahl |
| Mitarbeit | Ina-Maria Schmidbauer, Patrick von Ridder, Peter Scheller, Sebastian Multerer, Felix Martin |
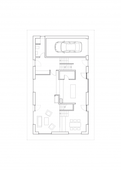
Bei dem Wohnhaus handelt es sich um ein freistehendes Gebäude, situiert auf einem wunderschönen Grundstück in leichter Hanglage mit Blick auf die Kampenwand in einem kleinen Weiler bei Aschau. Abweichend vom Bebauungsplan ist ein kompaktes Gebäude mit einem integrierten Garagenstellplatz entstanden. Der Hangneigung folgend entwickelt sich das Haus in Splitlevels in die Höhe.
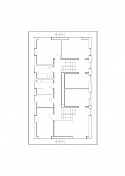
Durch diese Maßnahe und durch große Fassadenöffnungen im Erdgeschoss wird eine starke räumlich Verbindung zum Außenraum hergestellt. Die innere Erschließung des Hauses ermöglicht über zwei gleichartige Treppen vielfältige Raumzusammenhänge und wird durch den umlaufenden Balkon ergänzt. Der umlaufende Balkon, der mit einem Lattenkleid geschützt ist, schafft für die Schlaf- und Kinderzimmer im Obergeschoss ein zusätzliches Angebot: einen Raum, der sowohl Innen-, wie auch Außenraum ist.
In Materialwahl und Bauweise orientiert sich das Haus an ortstypischen Merkmalen. Das offene Erdgeschoss bildet in verputztem Mauerwerk den Sockel auf dem in dunkel lasiertem Holz das kompakt-geschlossene Obergeschoss mit seinem ungleichschenkligem Satteldach ruht.








