


| Location | Kaufering |
|---|---|
| Area | 5.594 m2 BGF |
| Client | Montessorischulverein Landsberg Kaufering |
| Structures | Ingenieurbüro Roll |
| With | IB Lück (project management) |
| Leistungsphasen | 1-7 |
| Status | 1. construction phase 10/ 2006, 2. construction phase 09/ 2009, 3. construction phase |
| Date | 2009 |
| Project Team | Ina-Maria Schmidbauer, Patrick von Ridder, Peter Scheller, Ruth Klingelhöfer, Felix Martin |
The new school is being built on the southern edge of Kaufering. A railway line to the north, a dense forest to the west and a state road to the east border the site. To the south, it opens up to an oak-covered meadow. The new school building stands close to the edge of the forest.
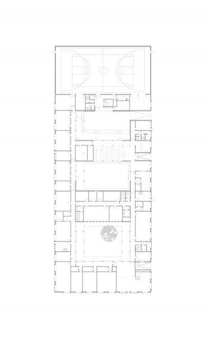
The wooden façade of the building is penetrated by the large window boxes covered with copper sheeting. They surround the entire school in a uniform order. The three building sections thus have a uniform appearance, becoming one large house. As bright learning and reading furniture, the window boxes also complement the classrooms to the outside, similar to the open-air areas; the widening of the corridor areas is an intermediate zone between the interior and the courtyard.
Three inner courtyards with different dedications (break courtyard, water courtyard and play courtyard) form protected, partly covered outdoor areas and create visual relationships across the inner courtyards.
The school is constructed as a timber system building from prefabricated elements; the first and second construction phases were each completed after only 6 months of construction time.








